低吟音乐,浅尝咖啡| 中粮别墅样板房设计
发布时间:2019年01月10日 点击率:
灰之味道/ 雅之旋律
项目名称:中粮.北纬28度别墅样板房设计
设计主题:灰之味道、雅之旋律
项目面积:420平米
开发商:中粮地产长沙观音谷房地产开发有限公司
设计公司:深圳市有无空间设计有限公司
设计总监:吴文熙
参与设计:云西、燕子
摄影:朱超
灰享 优雅 醇美
别墅项目的设计,重要的是找准定位客户家庭的真正需求,不是为“我”设计,而是为特定客户定制一个属于她们的梦想之家。本案客户定位是一个六口之家,有老人、有小孩,男主人为知名IT企业国际高管,女主人热爱生活、对家空间有较高品质与艺术品味追求。
▼ 1F 多功能厅
▼ 1F 酒水吧台
对于本案家庭架构的定位,吴文熙先生大胆选择了灰色作为空间形体的主勾色,给予空间铺垫更舒服、更优雅、更变化的可能;灰色,是优雅的、时尚的、国际的;灰色是包容的、也是可能性最大的色彩;灰色是中性的,通过家具的活跃搭配,灯光的冷暖营造,空间很和谐而又不失层次感。
▼ 2F 客厅空间
▼ 2F 楼梯厅空间
从二层到四层楼梯的位置与形式是改过的,原来的楼梯较为规矩与安静,设计师吴文熙先生把她大胆调到中庭来,让空间上下之间人与人的交流更好,人与空间、人与自然的互动也更直接。不管是阳光,还是细雨;透过天窗,自然的四季变化在围绕着中庭,在每天的上上下下,随时能触摸着自然的生命气息。
▼ 2F 餐厅空间
▼ 3F 家庭厅空间
<img src="http://microengine.a963.com/fanfangdaolianjie.php?url=https://mmbiz.qpic.cn/mmbiz_jpg/YXmibEdnBiaTH2ZDx3Q02ryH7nt1xrVgZou7SoY3cyMBEeQcdu8jty04CDQOWpKb41MrVImRLoqDjoFXxMKRTJpg/640?wx_fmt=jpeg" data-src="https://mmbiz.qpic.cn/mmbiz_jpg/YXmibEdnBiaTH2ZDx3Q02ryH7nt1xrVgZou7SoY3cyMBEeQcdu8jty04CDQOWpKb41MrVImRLoqDjoFXxMKRTJpg/640?wx_fmt=jpeg" data-type="jpeg" data-copyright="0" data-ratio="0.845" data-s="300,640" data-w="1200" 650px;"="">
▼ 4F 主卧空间
空间造型门套与天花灯槽线条比例讲究对比美,特色的家具都是经过设计师反复推敲而精工定制,结合于品质的装饰材料、营造成都市之外的休闲优雅生活空间。各组异质物象之间,发生的奇妙关系,若有若无的在意境中相互感染……
▼ 3F 女儿房空间
▼ 3F 男孩房空间
▼ 3F 长辈房空间
▼ 花絮:空间即舞台
吴文熙先生特别提出:好的空间,是会说话的,寻找本我的需求,听从心灵的呼唤,在生活之上、去探索家的不一样的美好可能性。让心灵与空间与自然不断对话,生命美好的体验自然来……
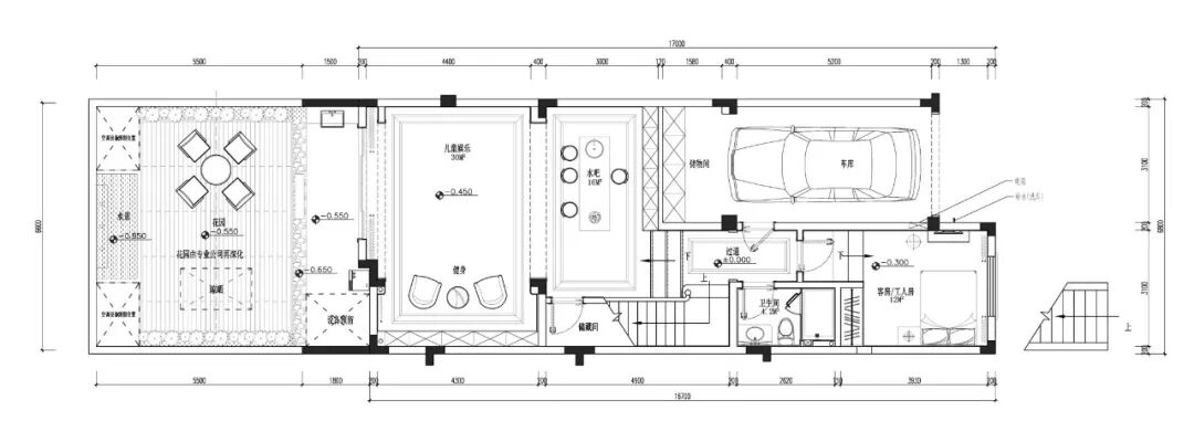
▼ 1F PLAN
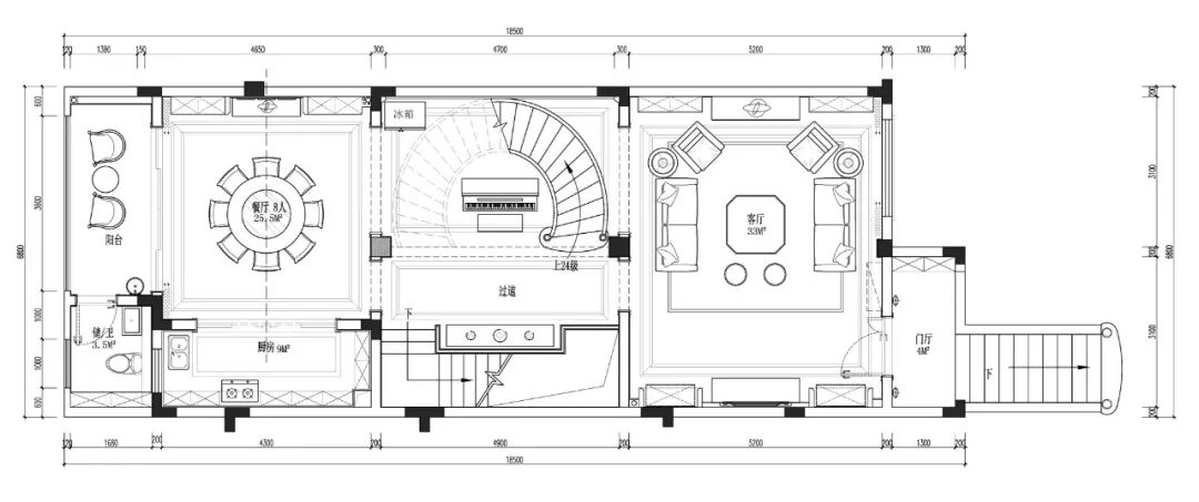
▼ 2F PLAN
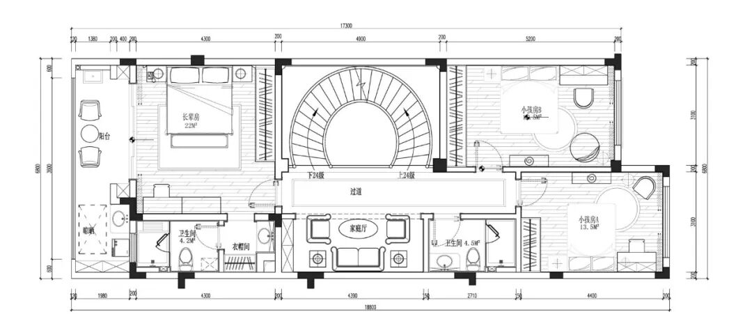
▼ 3F PLAN
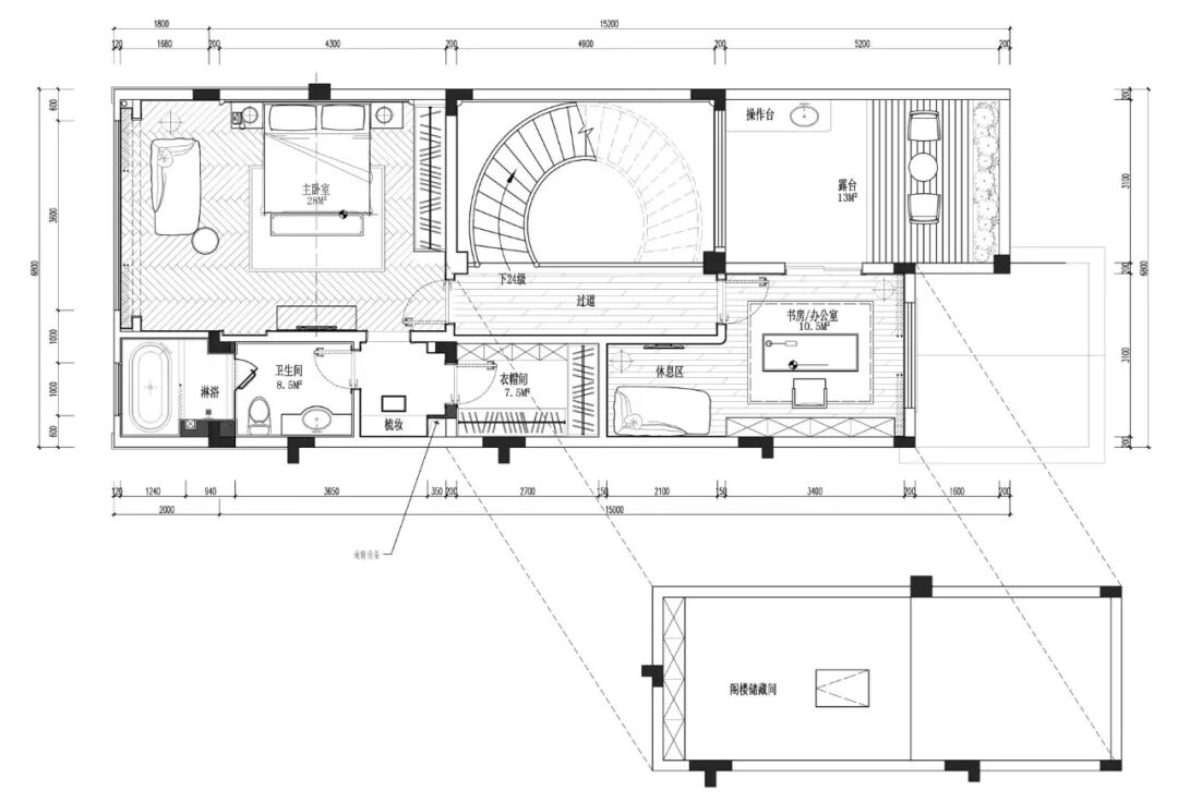
▼ 4F PLAN
关于有无空间设计
中国著名室内设计师、有无空间创始人 吴文熙先生
香港&深圳有无空间设计有限公司,成立于2003年,十五年专做精品酒店、地产、别墅、办公文化等空间设计。首席创意总监吴文熙先生带领的一群热爱设计的精英团队,并秉承用空间设计给每个空间注入和谐幸福、有生命力的能量,目标以客户带来商业价值成就感。
在不懈的努力下,有无空间设计已发展成汇聚各种文化背景国际设计人才的中国顶级空间设计公司。从创立至今,先后为10多个国际酒店集团,20多个顶尖品牌,30个以上上市公司提供了空间设计服务,获得了InterContinental Hotels Group(洲际)、Accor(雅高)、Shangri-la(香格里拉)、豪生、万科、华为、万达、Careland(凯立德)、百度营销等国际知名品牌的赞赏认可。有无空间设计以不求多只做精的理念,以国际化的专业视野,融合东西文化,以一切为客户价值利益着想的服务态度,为您铸造品牌、营造幸福空间贡献我们超能的力量!
(转自:A963设计前沿)
(该文章来源网络,如有侵权请联系15212443003,我们将第一时间进行删除)



