打破80-120㎡空间局限,时尚手法演绎极致现代风
发布时间:2017年08月18日 点击率:
镇江离沪、宁近,镇江人去上海的时间,就相当于上海人去香港的时间,所以镇江人对国际一线品牌与生活方式并不陌生。第三次住宅革命在一线城市已发生,就是回归市中心的大平层豪宅。本项目从商业到住宅范畴的整体定位以时尚、职业为主,年龄从二三十岁到四五十岁不等,但他们之间相互独立又互相沟通,最重要的是通过更高质量的住宅层次来表达他们鲜明的生活态度:地段的重要性之外,更着重去考虑空间设计感与有品牌质量感的生活配套。

1
苏宁广场西塔样板房#B1
该城市精品公寓项目,从80-120㎡户型,RWD 采用一线品牌豪华精装和住宅交楼标准体系为标准,为住户提供独家的全案设计方案。设计师从根据地域特色及其现代的建筑特点,从中寻找灵感:现代化质量、时尚的理念加之独特的设计手法共同营造一个现代化、感性、柔美、时尚的空间。


空间主轴以现代线条和材质整体体现现代时尚感,色调以轻盈的暖白色为主调,搭配原木色木饰面温暖柔和,软装搭配金色于蒂芙尼蓝,局部用不锈钢及镜面进行细节处理,仿佛映射出明朗通透,而又一丝不茍的都市人生活准则。





客厅简单以立面大块面进行分割,注重材质与材质之间的搭配和细节处理,镜面从某种程度上弥补了空间的开间宽度及很好的增加了视觉延伸感。电视墻主背景的鱼肚白大理石配合精致的细节处理,是在凸显其质量及空间的奢华度。



主卧现代简约,舒适温馨,以简洁的手法处理主体立面,软装在此对空间进行填充,使之更加灵活和具有韵律感,透明玻璃门衣柜可以直接增加空间通透感,与大落地窗的呼应更是恰到好处。


设计其实并不单以特定的布局和软硬装搭配为目的,白日光线的自然照射入室、傍晚城市霓虹浪漫倒影在窗镜,无一不展示了独特的设计手法及生活界定,空间应当是与室外、与外界互通的,供人以享受的、现代时尚的空间,是在中心,也能够在心中给人以一份例外的触动。

项目名称:苏宁广场西塔样板房#B1
项目地点:江苏·镇江
项目面积:74.5平方米
空间设计:RWD 黄志达设计
软装设计:AMBIANCE 安毕恩斯
主要用材:米色影木饰面、白色烤漆板、鱼肚白大理石、彩虹木纹大理石、银镜、不锈钢
摄影师:Maxim Kalinin

2
苏宁广场西塔样板房#D


由于建筑空间条件局限,设计师利用通透隔断和造型电视柜,让客餐厅原本属于暗室的空间也得以有良好采光,整个空间采取不隔断的开放式布局。“大度的雅致”,成为D1 户型的设计代名词,让生活空间更加有衔接感,在软装搭配上也有了更多色彩的关联和节奏的韵律感。橙色,贯穿了设计的全部精髓与生活气质,在家居中的表现可以艷丽高调,也可以复古低沉。



主用材的细部多处以玫瑰金不锈钢去勾勒出空间的精细感,也有一部分运用到软装单品上面,去点缀细腻奢华的施华洛世奇水晶吊灯,奠定各空间之间一致的雅致与气度。

如果说套装裙装代表了一个女人的衣着品位,那么,奢侈品牌的整体铺排与设计也就代表了一种高阶的生活态度,它是不容肢解的、不容有瑕疵的。在软装陈设的选择上,配合选用 Giorgetti 等家具品牌,与Francis Bacon、Colorwheel 主题艺术装饰画共同来呈现空间的雅致。




虽然空间面积不大,却足以让设计团队的“住宅精装标准化体系”得到发挥与运用。当你购物回家,双手无法四处找钥匙,入户挂钩很好的解放双手;卫浴间里,沐浴后不用担心镜子一片模糊,防雾镜在设计用材时已经有所考虑,沐浴间的隐藏地漏,美观并防堵塞......更多生活当中的细节问题得到解决,空间和细部的功能设计,是作为设计师身份一项更重要的技能。设计,无非是去营造一种更具个性、而又不失身份感的居家空间,让平淡生活更像穿梭在高雅的氛围之间,投以全身心去细享舒雅生活的一点一滴。

项目名称:苏宁广场西塔样板房#D
项目地点:江苏·镇江
项目面积:110平方米
空间设计:RWD 黄志达设计
软装设计:AMBIANCE 安毕恩斯
主要用材:深色胡桃木、意大利灰、古堡灰、古铜色不锈钢、艺术玻璃、墙纸
摄影师:Maxim Kalinin

3
苏宁广场西塔样板房#H
本案以“回到最初的样子”为核心设计理念,摒弃北欧设计的形式和表象,希望回到艺术本真的源点,回到生活的深处去做另一番体味,以崇尚的工匠精神和温暖的原始质感,影射文化对生活的隐喻和影响。整体空间布局隔断而有序,开放而内敛,每一个空间动静分离、自成一派。


空间局部用线条、色块、图腾来区分点缀。鲜明的对比用来表达新旧交融,展现现代北欧的多样性和生活美感,透过精心挑选的家具和艺术品,打造富有现代的北欧感居住空间。


主客厅用材上以纹理清晰的全实木铺就地面,以近乎裸色的天然大理石装饰电视背景墻,无论会客模式还是用餐时间,全然可以共享娱乐的空间。整块面的地毯,一致以纯凈的“七巧板”图案任意拼接,更加大了空间的素雅系数。













软装陈设中,选用Ligne Roset、Poliform 等品牌家私,超越人们对餐椅的所有想象,并把泡棉技术发挥到了极致,散发低调奢华的魅力。设计上以白色、灰色、原木色结合,橄榄绿作为点缀色与原木色相搭配,创造出养眼而令人舒适的生活氛围。设计师的角色就是通过设计去实现居住者的梦,有的梦在未来,有的梦却在过去,让我们一起跟随本案一起回到最初的样子。


项目名称:苏宁广场西塔样板房#H
项目地点:江苏·镇江
项目面积:106平方米
空间设计:RWD 黄志达设计
软装设计:AMBIANCE 安毕恩斯
主要用材:海棠木、榆木、木地板、都市灰、超白洞石、黑砂钢
摄影师:Maxim Kalinin

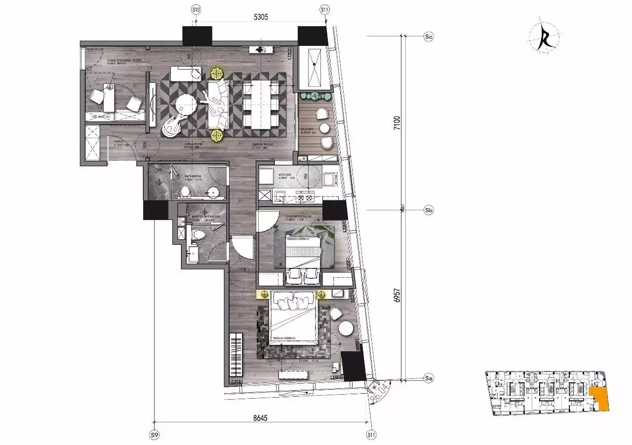
▲B1平面图

▲D1平面图

▲H平面图
文章摘自建E设计室内网
(该文章来源网络,如有侵权请联系15212443003,我们将第一时间进行删除)



